Quand je rencontre les propriétaires de cette maison d’architecte, leurs demandes sont très claires : ils souhaitent que je transforme le salon pour le rendre plus cosy avec la pose d’un poêle à bois et mieux intégré à la pièce principale composée de la salle à manger et d’une nouvelle cuisine ouverte; que je crée deux nouvelles salle de bains; que de nouveaux éclairages replacent les nombreux spots au plafond pour une lumière plus indirecte; que je leur propose un système de couverture amovible “brise soleil” au niveau de la terrasse exposée plein Sud…
Ce projet d’architecture intérieure devra intégrer aussi la rénovation complète du sol avec la pose d’un parquet contre-collé en chêne clair à la place de l’ancien carrelage et la mise en peinture de toute la surface.
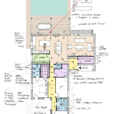
La problématique se visualise dès l’entrée dans le lieu, face à une double porte ouverte sur le petit salon excentré, juste séparé de la pièce de vie par un passage.
Comme une évidence, je sens que le point de départ se trouve ici : repenser l’entrée et réunir ces deux zones en déposant une partie du mur porteur après l’étude réalisée par un Bureau d’Etudes Techniques.
Ainsi commence le projet de restructuration qui consistera, comme souvent, à décloisonner pour mieux recloisonner les espaces, tout en repensant les zones “Jour & Nuit”, la fluidité de la circulation et la lumière.
L ‘accès visuel et physique de la cuisine vers la terrasse sera optimisé par l’ouverture du porteur et la pose d’une grande baie coulissante 3 vantaux.
Une partie du bureau sera utilisée pour agrandir le dressing et la salle d’eau de la chambre parentale. L’autre partie sera conservée et intégrée dans la pièce principale grâce à une cloison métallique vitrée sur mesure de type “atelier d’artiste“.
Au bout du couloir, une pièce ouverte offrant un beau potentiel, permettra de déplacer la salle de bain des enfants entre les deux chambres et de récupérer de la surface pour la pièce de vie.
Et, afin de profiter pleinement des espaces extérieurs, une pergola avec lames orientables et store intégré, permettra de tamiser la lumière du Sud.
Une deuxième jeunesse pour cette maison d’architecte pour que les propriétaires se sentent mieux chez eux !
Mission de conception & Maîtrise d’œuvre : restructuration complète de 160 m2
Crédit photos : Eric Bouloumié
SOUL SENS
Architecture intérieure holistique
Connexion d'âme à âme, entre l'Humain & son Habitat.