Cette villa avait une situation de rêve, à quelques mètres de l’eau, et comme beaucoup de maisons de vacances, la cuisine et les salles de bain avaient besoin d’un petit coup de neuf… mais le point le plus important de ce projet d’architecture intérieure a été d’optimiser la vue de l’étage en ouvrant la pièce de vie sur le Bassin d’Arcachon d’un côté et d’agrandir la terrasse en caillebotis bois plein Sud de l’autre.
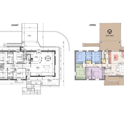
Seuls les murs extérieurs ont été conservés et après dépose de l’existant, le nouveau cloisonnement de toute la surface a permis d’optimiser l’isolation thermique et phonique. Avec la création d’une entrée, d’une cuisine ouverte et ilot central, d’un petit coin salle à manger avec une banquette sur mesure, de trois nouvelles salles de bain pour les quatre chambres, d’un nouveau revêtement de sol, de couleurs pour structurer les espaces… cette maison a retrouvé de la fonctionnalité, de la luminosité et de la convivialité pour le bonheur des petits et des grands!
Mission de conception et suivi architectural : restructuration complète de 130 m2
Maîtrise d’œuvre et travaux : société ARCAS
Crédit photos : Eric Bouloumié
Un autre exemple de restructuration d’une maison sur Bordeaux, la maison CEDRES ici
SOUL SENS
Architecture intérieure holistique
Connexion d'âme à âme, entre l'Humain & son Habitat.